您的位置 > 资源库 > 技术资讯
在线服务资源库
储罐氮封阀选型及氮封阀内件材质的选择

                    储罐氮封阀选型及氮封阀管径的选择

一、氮封阀简介:

       在储罐应用中,氮封阀是用来保护储罐,防止在物料泵出时或储罐气体冷凝时造成的真空将储罐抽瘪。大多数氮封系统是由几个控制阀组合而成,或由自力式调节阀代替。但我们的系列氮封阀并不是一个减压控制阀,它是我们的专业工程师根据对储运系统罐区的深入了解及多年的应用经验,专门为储罐设计的氮封系统。                     

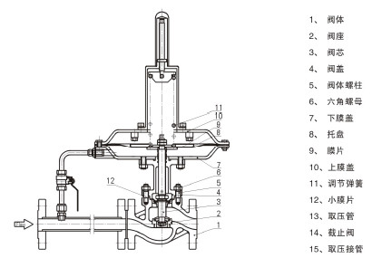
二、氮封阀结构简图及组成

1、供氮阀的结构简图及组成:

                                                                     

 2、泄氮阀的结构简图及组成:

 

三、氮封阀选型注意事项:

          根据以上结构组图可以看出,氮封阀的供氮和泄氮内部中应用到较多橡胶材质,故在选型设计时应详细确定储罐物料与橡胶材质的性质,提高氮封阀在实际安装使用过程中的寿命和功能;

           我公司根据现场工艺情况及多年配套经验,提供了多种有针对性的内部材料可供选择:

阀体材质

WCB  304     316     316L

内件材质

304     316     316L

密封件材质

FKM(氟橡胶)      NBR(丁晴橡胶)    EPDM(乙丙橡胶)

 

 

ky棋牌官方正版下载 - ky棋牌2025最新版下载V39.39.6.95 安卓版 - 2265安卓网