您的位置 > 资源库 > 技术资讯
在线服务资源库
自力式微压调节阀的工作原理、安装及选型应用

一、自力式微压调节阀的的概述:
  
  ZZV型自力式微压调节阀是一种不需要外加能源的自力式执行器产品。自力式微压调节阀可分段调节:从50mm.W.C至0.1MPa。其用途十分广泛,可用于工业燃烧炉系统微压减压、稳压。控制两种物料,如煤气、空气流量配比,以达理想燃烧。用于氢冷发电机组密封油系统,控制密封油与氢气间压力差,以确保可靠密封。当差压阀的低压端通大气即为微压阀(差压阀负压,端压,力为零)。
  
二、自力式微压调节阀的工作原理及控制方式:
  
三、自力式微压调节阀的安装:

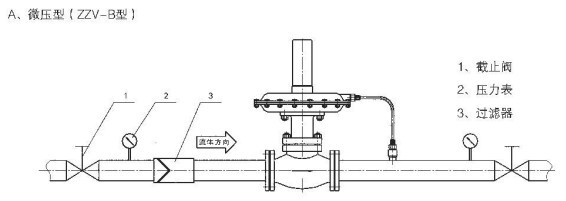
说明:自力式微压调节阀减压型(ZZVP/M/N-16B)

说明:自力式微压调节阀泄压型(ZZVP/M/N-16K)

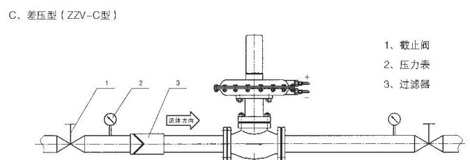
说明:自力式微差压调节阀差压型(ZZCP/M/N-16)

资讯:自力式压力调节阀|http://www.zdskqw.cn 欢迎登录。

ky棋牌官方正版下载 - ky棋牌2025最新版下载V39.39.6.95 安卓版 - 2265安卓网